大阪を熟知したプロがいる地域密着型不動産
分譲大阪Classical

ドゥーシェ天王寺烏ケ辻

物件概要

所在地 大阪府大阪市天王寺区烏ケ辻1丁目1-19 MAP
交通 大阪環状線  桃谷駅  徒歩2分
Osaka Metro 千日前線  鶴橋駅  徒歩12分
大阪環状線  鶴橋駅  徒歩12分
築年月 2013月1月 構造 鉄筋コンクリート造(RC造)
総階数 14階 総戸 52戸
設備
  • #エレベータ
  • #宅配ボックス
  • #オートロック
  • #駐車場有り
  • #駐輪場有り
  • #ペット飼育可
  • #都市ガス
  • #コンビニ近
  • #スーパー近
  • #駅近
小学校区 大阪市立五条小学校 中学校区 大阪市立夕陽丘中学校

ドゥーシェ天王寺烏ケ辻のタイプ一覧

※掲載しているお部屋が、状況によりご成約済みの場合がございます。何卒ご了承くださいませ。

お問い合わせ

ドゥーシェ天王寺烏ケ辻に関することは
お気軽にお問い合わせください

物件概要

所在地 大阪府大阪市天王寺区烏ケ辻1丁目1-19
交通 大阪環状線  桃谷駅  徒歩2分
Osaka Metro 千日前線  鶴橋駅  徒歩12分
大阪環状線  鶴橋駅  徒歩12分
築年月 2013月1月
構造 鉄筋コンクリート造(RC造)
総階数 14階
総戸 52戸
設備
  • #エレベータ
  • #宅配ボックス
  • #オートロック
  • #駐車場有り
  • #駐輪場有り
  • #ペット飼育可
  • #都市ガス
  • #コンビニ近
  • #スーパー近
  • #駅近
小学校区 大阪市立五条小学校
中学校区 大阪市立夕陽丘中学校

ドゥーシェ天王寺烏ケ辻のタイプ一覧

写真 名称 間取り 専有面積 方角 詳細 見学予約
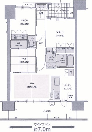
ドゥーシェ天王寺烏ケ辻 3LDKタイプ 3LDK 65.8㎡ 詳細 見学予約

※掲載しているお部屋が、状況によりご成約済みの場合がございます。何卒ご了承くださいませ。

ドゥーシェ天王寺烏ケ辻のアクセスマップ

よくあるご質問

Q

ドゥーシェ天王寺烏ケ辻に住みたいと思っています。募集中の部屋はありますか?

Q

ドゥーシェ天王寺烏ケ辻周辺エリアに住みたいです。募集中の物件はありますか?

新着物件一覧

ドゥーシェ天王寺烏ケ辻と同じ駅にある物件一覧

最近チェックした物件

  • 最近チェックした物件はありません。

Contact

お問い合わせ

Classicalで気になる大阪市分譲賃貸物件やご質問があればお気軽にお問い合わせください。
丁寧なヒアリングにより、お客様のご要望や懸案事項を
しっかりと把握し、スタッフ一同でお客様とのお取引を円滑に進めてまいります。

空室・退去
速報