大阪を熟知したプロがいる地域密着型不動産
分譲大阪Classical

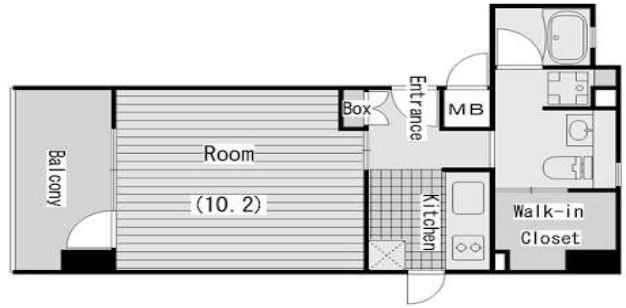
間取り 専有面積 方角
1K 38.40㎡ 西

エイペックス東心斎橋Ⅱ 1Kタイプ

間取り

1K

専有面積

38.40㎡

方角

西

※物件設備や写真は特定の部屋情報を記載しており、分譲マンションは同タイプでも部屋によっては異なる場合がございます。希望のタイプや空室情報などお気軽にお問い合わせください。
※分譲マンションの為部屋毎に値段の変動ございます。

「エイペックス東心斎橋Ⅱ 1Kタイプ」の詳細は「分譲賃貸大阪Classical」まで

分譲賃貸大阪Classical
営業時間 : 9:30 - 19:00
定休日 : 年中無休

エイペックス東心斎橋Ⅱ 1Kタイプの賃貸情報

タイプ名 エイペックス東心斎橋Ⅱ 1Kタイプ
間取り 1K
専有面積 38.40㎡ 方角 西
部屋設備
  • #バストイレ別
  • #室内洗濯機置場
  • #独立洗面台
  • #システムキッチン(2口・3口か選択制)
  • #ウォシュレット
  • #浴室乾燥機
  • #ウィークインクローゼット
  • #シューズボックス
  • #バルコニー
  • #ネット無料
  • #エアコン
  • #日当たり良好
  • #シャンプードレッサー
  • #モニター付インターホン
タイプ名 エイペックス東心斎橋Ⅱ 1Kタイプ
間取り 1K
専有面積 38.40㎡
方角 西
部屋設備
  • #バストイレ別
  • #室内洗濯機置場
  • #独立洗面台
  • #システムキッチン(2口・3口か選択制)
  • #ウォシュレット
  • #浴室乾燥機
  • #ウィークインクローゼット
  • #シューズボックス
  • #バルコニー
  • #ネット無料
  • #エアコン
  • #日当たり良好
  • #シャンプードレッサー
  • #モニター付インターホン

この物件へお問い合わせ

必須物件名

必須お名前

必須ふりがな

必須メールアドレス

任意お電話番号

任意希望連絡方法

任意希望する連絡時間帯

任意備考

他の空室タイプ一覧

※掲載しているお部屋が、状況によりご成約済みの場合がございます。何卒ご了承くださいませ。

他の空室タイプ一覧

※掲載しているお部屋が、状況によりご成約済みの場合がございます。何卒ご了承くださいませ。

¥93,000

よくあるご質問

Q

エイペックス東心斎橋Ⅱ に住みたいと思っています。募集中の部屋はありますか?

Q

エイペックス東心斎橋Ⅱ 周辺エリアに住みたいです。募集中の物件はありますか?

新着物件一覧

エイペックス東心斎橋Ⅱと同じ駅にある物件一覧

最近チェックした物件

  • 最近チェックした物件はありません。

classicalへ相談する

Contact

お問い合わせ

Classicalで気になる大阪市分譲賃貸物件やご質問があればお気軽にお問い合わせください。
丁寧なヒアリングにより、お客様のご要望や懸案事項を
しっかりと把握し、スタッフ一同でお客様とのお取引を円滑に進めてまいります。

空室・退去
速報